Kontaktujete nás
+420 605 238 493
Celkem 34 fotografií, zobrazit všechny

Finanční kalkulačka

Líbí se Vám tato nemovitost, ale nemáte v současné době dostatek finančních prostředků? Rádi Vám poskytneme možnost financování.


Částka:

Úrok:
%

Doba splácení:
let

Měs. splátka:
Prodejce:
realitní makléř: Pavel Klimeš
Pavel Klimeš
telefon: +420 603 805 338
pavel.klimes@kontaktservis.cz

K nezávaznému kontaktování stačí pouze vyplnit formulář:

* Vaše jméno a příjmení
* Email pro odpověď
* Telefon
* Váš vzkaz
 
Odesláním dotazu zároveň souhlasíte se zpracováním osobních údajů  

Prodej bytu 3+kk 148 m2, České Budějovice 3

Popis nemovitosti:

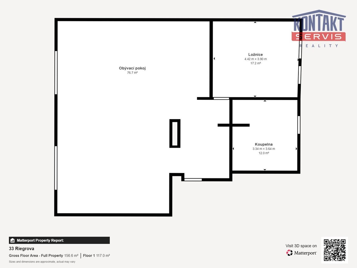
Exkluzivně nabízíme k prodeji zděný mezonetový byt 3+kk, který se nachází v oblíbené části širšího centra Českých Budějovic, Riegrově ulici. Byt je umístěn ve 3. NP (půdní vestavba) menšího činžovního domu, který byl v roce 2005 kompletně rekonstruován. Byt samotný se skládá z velkého obývacího pokoje s kuchyňským koutem, samostatné ložnice a velké koupelny s rohovou vanou. V mezonetové části bytu se pak nachází jedna ložnice a obytná galerie. Byt je vybaven původní kuchyňskou linkou se spotřebiči. Vzhledem k celkové velikosti obytného prostoru je byt možno v rámci předpokládané rekonstrukce dispozičně rozšířit až na 5+kk. K bytu náleží sklep a samostatná garáž v přízemí domu (43 m2), která je vhodná jako skladovací prostor (parkování pouze pro nižší vůz). Topení a ohřev vody zajišťuje plynový kotel. K dispozici je též menší společná zahrada s dvorkem. Financování je zajištěno hypotečním úvěrem, doporučujeme osobní prohlídku. PENB G.

Cena: 6.900.000 ,-
Včetně právního servisu, Včetně provize
Typ nemovitosti:
Byt
Číslo nemovitosti:
PK-7823
Typ bytu:
3+kk
Operace:
Prodej
Vlastnictví:
Osobní
Plocha podlahová:
148 m2
Plocha sklepa:
8 m2
Podlaží:
3. podlaží z 3 podlaží celkem
Stav objektu:
Dobrý
Konstrukce:
Cihlová
Umístění objektu:
Centrum obce
Komunikace:
Asfaltová
Rok rekonstrukce:
2005
Vydaný certifikát:
G - Mimořádně nehospodárná
Typ certifikátu:
vyhláška č. 264/2020 Sb
Je zobrazena přibližná poloha nemovitosti, adresa:
Riegrova, Pražské Předměstí, České Budějovice 3, České Budějovice, SO POÚ České Budějovice, SO ORP České Budějovice, okres České Budějovice